L'innovazione tecnologica nelle costruzioni
domenica 9 giugno 2013
Costruire con una matita
venerdì 7 giugno 2013
Autocad
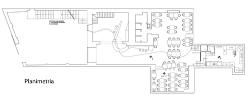
Autocad è il primo software per Pc in grado di realizzare disegni tridimensionali (o bidimensionali).Utilizzato principalmente per uso ingegneristico o archittettonico,meccanico ecc. è l'evoluzione dei primitivi progetti su carta e tramite una miriade di funzioni si può ricostruire qualsiasi figura nello spazio tridimensionale quindi utilizzato per ricreare ad esempio progetti di case,ponti,palazzi e così via,rendendo un po' più semplice la vita da progettista evitando così l'utilizzo di squadre,righello penne e matite varie.Basta l'inserimento di coordinate precise in appositi settori e il software elabora il tutto in tempo reale.
| Palazzina disegnata con autocad |
| Palazzina disegnata con autocad |
giovedì 6 giugno 2013
I progetti
Alla base di una Grande costruzione c'è sempre un grande progetto,negli anni i progetti sono stati scritti e sviluppati su carta,carta di tutti i tipi papiri nell'antico egitto , pergamene,carta millimetrata,carta blu(blueprint) per poi ad arrivare ai progetti fatti a computer che tratteremo nei prossimi post.
mercoledì 5 giugno 2013
La Gru
Un altro importante mezzo che ha facilitato notevolmente il lavoro degli operai è la Gru.
Le gru moderne sono alte,robuste e possono trasportare e sollevare migliaia di tonnellate,vengono infatti utilizzate per il trasporto di materiali,fondamentali per l'edilizia oppure carico scarico di navi e utilizzate anche nel settore ferroviario.Anche in passato venivano utilizzate delle gru,ma erano molto meno robuste e di semplice fattura: come ad esempio un sistema di carrucole.
Ed ecco qualche utile misura di sicurezza per l'utilizzo di una gru..
Procedure di sicurezza con una gru
lunedì 3 giugno 2013
Ponteggi
Ma cosa ha aiutato nel corso della storia a lavorare a questi grandi e funzionali edifici?Uno degli aiuti che ha concesso all'uomo di sviluppare le loro opere in altezza sono i ponteggi!
Fino ai primi del Novecento le strutture portanti dei ponteggi venivano realizzate in legno ( si ricorda quello realizzato da Michelangelo per la costruzione della cupola della Basilica di San Pietro), mentre quelle moderne sono quasi tutte costituite in acciaio oppure in alluminio.
Gli impalcati possono essere costituiti da tavole di legno ( chiamate ponti) o di acciaio indipendentemente dal materiale con cui è costruita la struttura portante. Nei paesi asiatici vengono utilizzate anche strutture di bambù.
I ponteggi vengono solitamente realizzati per la costruzione o ristrutturazione di edifici. In questo caso vengono considerati dispositivi di protezione collettiva contro le cadute dall’alto. Possono altresì essere utilizzati come strutture autoportanti per la creazione di palchi, gradinate, affissioni pubblicitarie o altro.
I ponteggi in acciaio possono appartenere ad uno dei seguenti tre sistemi, previsti dalle vigenti normative italiane:
Fino ai primi del Novecento le strutture portanti dei ponteggi venivano realizzate in legno ( si ricorda quello realizzato da Michelangelo per la costruzione della cupola della Basilica di San Pietro), mentre quelle moderne sono quasi tutte costituite in acciaio oppure in alluminio.
Gli impalcati possono essere costituiti da tavole di legno ( chiamate ponti) o di acciaio indipendentemente dal materiale con cui è costruita la struttura portante. Nei paesi asiatici vengono utilizzate anche strutture di bambù.
I ponteggi vengono solitamente realizzati per la costruzione o ristrutturazione di edifici. In questo caso vengono considerati dispositivi di protezione collettiva contro le cadute dall’alto. Possono altresì essere utilizzati come strutture autoportanti per la creazione di palchi, gradinate, affissioni pubblicitarie o altro.
I ponteggi in acciaio possono appartenere ad uno dei seguenti tre sistemi, previsti dalle vigenti normative italiane:
- sistema a tubi e giunti, meglio conosciuto come ponteggio a tubi Innocenti (così detti dal nome dell'inventore Ferdinando Innocenti), molto versatile e idoneo per qualsiasi tipo di impiego, ma più laborioso da montare;
- sistema a telai prefabbricati, pensato per l’utilizzo su facciate di edifici lineari
- sistema a montanti e traversi prefabbricati (multidirezionale o multipiano), abbastanza flessibile e generalmente idoneo per la realizzazione di strutture a tre dimensioni.
sabato 1 giugno 2013
Costruzioni odierne(i grattacieli)
I grattacieli sono degli enormi palazzi sviluppati in altezza,sono definiti grattacieli i palazzi che superano i 15 piani e super grattacieli gli edifici che superano gli 80 piani!
La costruzione dei primi grattacieli avviene agli inizi del XX secolo ,nascono per la necessità di occupare meno spazio possibile in estensione e recuperarlo in altezza così da aumentare la concentrazione di persone che possono abitare in una piccola parte di città(corrispondente all'area della base del palazzo).
Qui sotto una serie di immagini raffiguranti i grattacieli più alti del mondo e un link che contiene la loro descrizione e storia.
La costruzione dei primi grattacieli avviene agli inizi del XX secolo ,nascono per la necessità di occupare meno spazio possibile in estensione e recuperarlo in altezza così da aumentare la concentrazione di persone che possono abitare in una piccola parte di città(corrispondente all'area della base del palazzo).
Qui sotto una serie di immagini raffiguranti i grattacieli più alti del mondo e un link che contiene la loro descrizione e storia.
| Twin Towers-Kuala Lumpur |
| Chrysler Building-New york |
| Empire State Building-New york |
Iscriviti a:
Commenti (Atom)